Fragranite spoelbak BFG 611-62, omkeerbaar
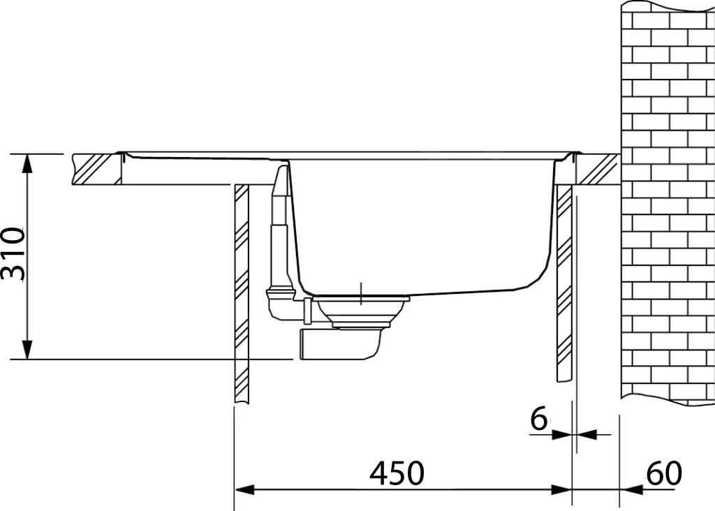
- afmetingen 620 × 500 mm
- uitsnede 600 × 480 mm (radius 20 mm)
- spoelbak 340 × 420 × 200 mm
- onderkast vanaf 450 mm
- voor opbouwmontage
- afvoerzeef 3 1/2″ met overloop
- ruimtebesparende sifon 6/4″ met vaatwasser aansluiting
- mogelijkheid om een wasmiddeldispenser te plaatsen in een kast vanaf 600 mm
Keukenmengkraan FC 650.031
- drukkraan
- hendelbediening
- 360° draaibaar
- aansluiting: flexislangen 450 mm
- debiet: 11,2 l/min (3 bar)
Dit product kan bij u zonder originele verpakking geleverd worden. De reden is bescherming van product tegen eventuele schade tijdens transport.



















Beoordelingen
Er zijn nog geen beoordelingen.